LES TRITONS - Appartement neuf
SETE
-
Disponibilité : 1er trmestre 2027
- Pièce(s) : 3 pièce(s)
- Chambre(s) : 2 Chambre(s)
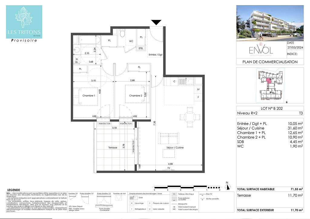
- Surface : 71.55 m²
- Terrain : 0.00 m²
À quelques mètres de la plage,dans le quartier prisé de la Corniche à Sète, la résidence« Les Tritons » est le symbole mêmed u renouvellement urbain.
La résidence « Les Tritons » représente bien plus qu’un bâtiment. C’est un symbole d’espoir, de revitalisation et d’engagement envers les concitoyens de la ville de Sète. Avec la municipalité, EnVol a choisi de voir au-delà des difficultés et de métamorphoser ce lieu en un espace de vie moderne et attrayant.
Ce site magnifique, idéalement placé sur la Corniche, va revivre. Avec la résidence « Les Tritons » c’est un renouveau urbain qui se dessine. Bien plus qu’un projet immobilier, c’est un projet de vie qui s’offre à vous.
La résidence s’élève sur 4 niveaux et s’étend sur 2 bâtiments. Elle est clôturée et possède des accès véhicule et piéton. Elle est sécurisée par un portail automatique, un portillon, un système de digicode et des badges d’entrée. Un parc de stationnement conséquent est prévu en sous-sol, sur 2 niveaux, accueillant des parkings, garages et locaux vélos.
Les appartements du T1 au T5 sont conçus pour préserver l’intimité des futurs habitants mais il sera également possible de se détendre et d’échanger autour du jardin paysager commun dans une ambiance familiale et conviviale. Les halls d’entrée et les parties communes de l’immeuble seront décorés avec goût par un architecte d’intérieur pour apporter élégance et modernité.
cette annonce à un ami
Veuillez réessayer à nouveau




