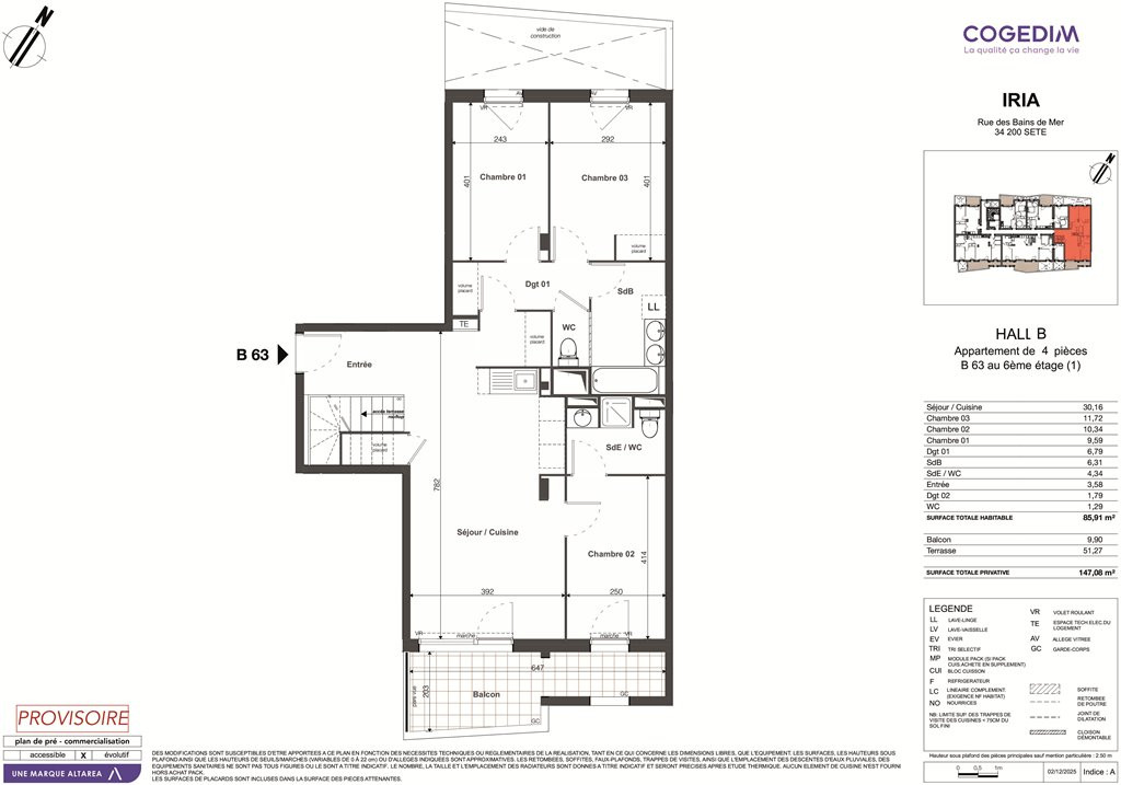
IRIA - Appartement neuf
SETE
-
Disponibilité : 3e trimestre 2028
- Pièce(s) : 4 pièce(s)
- Chambre(s) : 3 Chambre(s)
- Surface : 85.91 m²
- Terrain : 0.00 m²
Côté Kursaal / Rive Sud,
Résidence sécurisée R+5 BBC RE2020 composée 100 logements (30 en accession libre, 40 en accession maitrisée, 30 logements sociaux) avec des appartements répartis sur 3 couloirs du T2 au T4. Places de parking au rez-de-chaussée.
La résidence est située en 1ère ligne port au sein du nouveau quartier du Kursaal (Rive Sud - entrée Est de Sète).
Eau chaude sanitaire, chauffage et raffraichissement d'air (logements en accession libre) par thalassothermie, salles d'eau ou salles de bain équipées, placards aménagés, volets roulants électriques ou manuels, fibre optique, ascenceur, videophone, extérieurs arborés et végétalisés...
Livraison 3e trimestre 2028.
Lots en accession matirisée pour les primo-accédents (sous conditions).
Aide possible de la ville de Sète pour l'achat (sous conditions).
cette annonce à un ami
Veuillez réessayer à nouveau




